| Number: | 020 |
| Year: | 2024 |
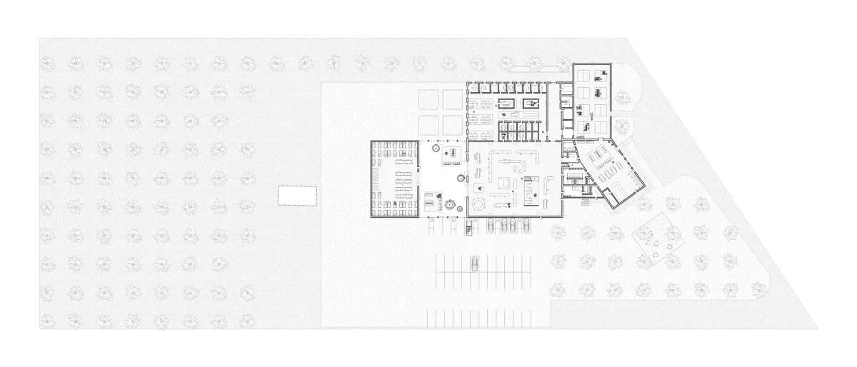
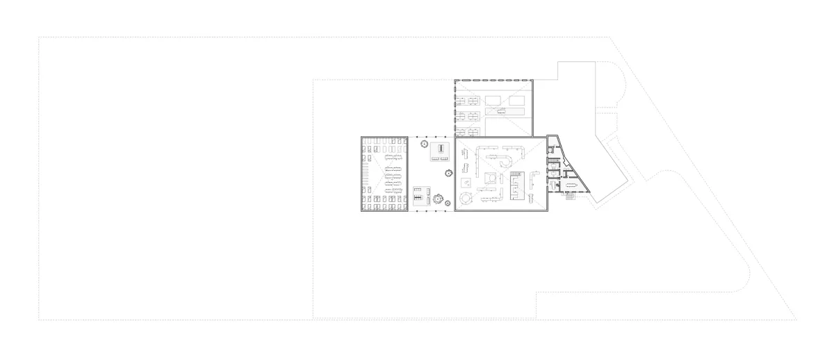
| Name: | ECV Community Resilience Campus |
| Location: | Coachella Valley, CA |
| Type: | Ongoing |
| Project Team: | Gillian Shaffer, Paul Ruppert, Taiyo Minami |
The ECV Community Resilience Campus is a 28,000sf community hub designed to serve as a safe haven during extreme heat events while also supporting long-term resilience. In addition to providing immediate relief for vulnerable populations, the center incorporates offices for non-profits, an agri-business incubator and youth-community programming, creating a year-round resource that strengthens community networks and fosters economic opportunity. The design emphasizes accessibility, adaptability, and civic identity, ensuring the facility can serve both as emergency infrastructure and as a catalyst for ongoing community development.







